Projets

Cité Internationale de la tapisserie,
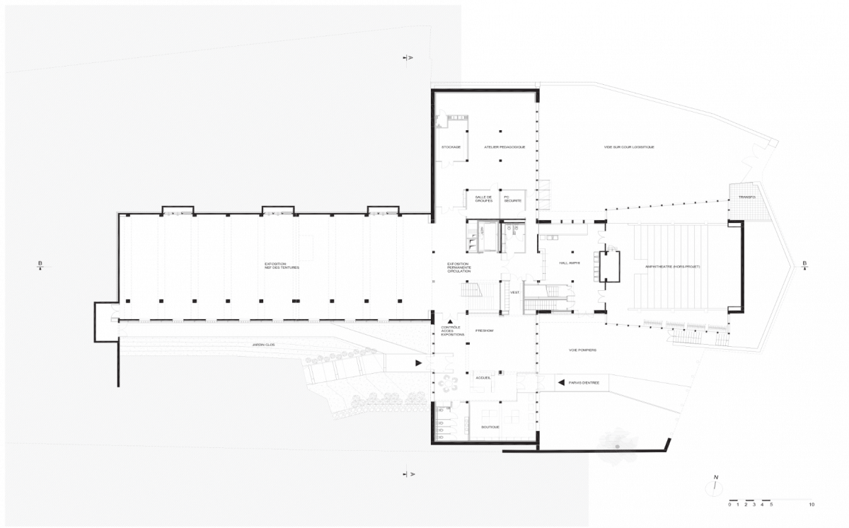
Aubusson (23)

La dimension symbolique de la Cité Internationale de la Tapisserie et de l’Art tissé est à l’échelle de ses ambitions : au-delà de la conservation et de l’exposition, préserver un savoir-faire vivant reconnu par l’Unesco comme patrimoine culturel immatériel de l’humanité, et repositionner Aubusson dans le champ de la création contemporaine.


L’inscription contemporaine de la Cité s’opère par la transformation radicale de l’image du bâtiment de l’ancienne École Nationale d’Arts Décoratifs, tout en s’appuyant sur ses qualités premières : monumentalité, rythmes des façades, qualité et luminosité des espaces intérieurs.

Une nouvelle peau constituée d’un système mixte de lames de bois – du pin Douglas des forêts du Limousin – et de membranes textiles imprimées évoque à la fois le bois des métiers et la couleur, matière première de la tapisserie.


Prix Régional Construction Bois Nouvelle Aquitaine 2018
Sélection Prix National Construction Bois 2019

Téléchargez le dossier de presse

Programme
Réalisation de la Cité Internationale de la Tapisserie sur le site de l’ancienne École Nationale des Arts Décoratifs

Maîtrise d'ouvrage
Syndicat Mixte de la Cité Internationale de la Tapisserie / SELI, AMO

Localisation
Aubusson (23)

Maîtrise d'oeuvre
TERRENEUVE architectes, mandataire
Atelier Paoletti-Rouland, muséographie; Margaret Gray, graphiste; Armelle Claude, paysagiste; AXIO économiste; Khephren Ingénierie, BET structure; Cap Ingelec, BET fluides;  ACL Lumières, éclairagiste; Art Rescue, & Anaïs Ortiz, conservation préventive; Altia, acousticien

Surfaces et coût de construction
4 600 m2 dont 680 m2 neufs + 4 000 m2 extérieurs
6,8 M€ HT yc muséographie, mobiliers et extérieurs

Calendrier
Livraison 2016

Missions
Mission de maîtrise d’oeuvre de base + EXE partielle

Photos ©Daniel Rousselot ©TERRENEUVE