Projets

Lycée Robert Doisneau,
Corbeil-Essonnes (91)

Le lycée Robert Doisneau à Corbeil-Essonnes, inauguré en 1959 et l’un des plus grands établissements d’Ile-de-France, regroupe enseignement général, technologique et professionnel.


Installé face au quartier sensible des Tarterêts, son architecture est caractéristique de l’urbanisme des grands ensembles des années 60.

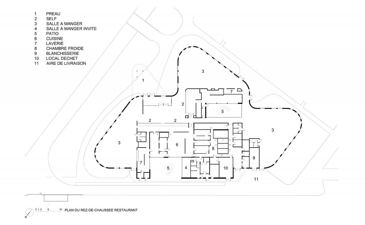
Notre projet d’extension renforce l’identité du «campus paysager» par la construction de «pavillons» aux lignes souples rythmées d’un bardage en mélèze, regroupant les nouvelles fonctions qualifiantes du lycée; l’accueil, le théâtre et le pôle de restauration conçu pour 2 500 repas/jour. Cette requalification s’accompagne d’une restructuration lourde des bâtiments d’enseignements existants.


Programme
Restructuration-extension du lycée Robert Doisneau, 2100 élèves. Démarche HQE - opération phasée en site occupé

Maîtrise d'ouvrage
Région Ile-de-France / Essonne Aménagement (91), mandataire

Localisation
Corbeil-Essonnes (91)

Maîtrise d'oeuvre
TERRENEUVE architectes associés; De-So architectes mandataires;  CRBA, BET clos-couvert; Synapse Ingénierie, BET fluides; Co.Sy.Rest., BET cuisines collectives; Altia, acousticien; PRCA, suivi de travaux

Surfaces et coût de construction
3 200 m² SHON neufs+11 300 m² SHON réhabilités / 32 M€ HT

Calendrier
Llivraison 2016 (tranche 1) à 2019 (tranche 4)

Missions
Mission de maîtrise d’oeuvre de base

Photos ©Daniel Rousselot ©Hervé Abbadie ©TERRENEUVE